
TCY干式强磁钛预选机的应用
概述:钛作为一种具有优异性能的金属元素,在自然界中广泛分布,金属元素含量占第七位,仅次于铝、铁、钙、钾、钠和镁,大量应用于航空航天、冶金、医疗、运动器械、生活用品和轻工业等各个方面。在矿物中,钛矿主要为钒钛磁铁矿中的钛矿、金红石矿和钛铁矿砂矿等,我国钛铁矿储量居世界前列,如何进一步高效分选钛铁矿是当前国内各个选厂最关心的问题。
适用范围
TCY干式强磁钛预选机是山东yl8cc永利针对钛铁矿研制的最新一代干式强磁选设备,适用于粒度为-3mm的低品位钛铁矿干式预选、富集,可有效提高精矿品位,减少功耗,降低选矿成本,提高生产效率;亦可应用于铬铁矿、石榴石、独居石、石英石等有磁性差异矿物的精选和分选。

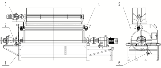
TCY干式强磁钛预选机

结构示意图
1机架 2滚筒总成 3匀料装置 4振动给料装置 5上壳体 6分料装置
基本结构
设备主要由机架、滚筒总成、匀料装置、振动给料装置、上壳体、分料装置、驱动装置等部分组成。匀料装置采用螺旋铰刀结构设计,可实现定量给料;振动给料装置采用振动电机作为振动源,给料槽采用加长结构设计,确保布料均匀;
磁系全部由高性能钕铁硼材料组成,采用大包角、窄磁极、多磁极结构设计,沿圆周方向N、S极交替排列,使矿物在滚筒表面多次翻滚,可大幅度提高精矿品位。筒体采用高强度非金属材料制作,避免磁涡流损耗,解决了不锈钢类筒体发热问题和传动功率大的难题。筒体表面采用高性能陶瓷片防护,延长筒体使用寿命。
工作原理
矿物通过匀料装置和振动给料机后,均匀分布在滚筒表面,磁性矿物在磁力作用下被吸附,随滚筒旋转,在多磁极、高场强的磁力作用下,矿物中的杂质及贫连生体得到有效剔除。经选别后的磁性矿物随滚筒旋转到无磁区域,富集到精矿区,成为精矿;贫连生体和非磁性矿物在重力和离心力作用下从尾矿区排出,成为尾矿。
性能特点
⚫实现了-3mm的低品位钛铁矿干式预选、钛铁分离富集;
⚫筒体主体采用高强度非金属材料制作,避免高速运行时金属筒体磁涡流功率损耗,节电50%以上。
⚫行星布料器配振动给料机组合布料,给料均匀,保障分选效果。
⚫给料、布料、分选全密封结构,设备无扬尘生产。
⚫筒表场强高达10000Gs,高密度磁翻转,杂质抛除彻底。
⚫自动化、智能化远程控制,基本实现无人值守。
应用实例
新疆某钛铁矿原矿破碎至-1mm,经yl8cc永利磁电FCX高频脉动粉矿风力干选机选别后,尾矿进TCY干式强磁钛预选机富集钛品位。

选矿实验流程

选矿化验结果
原矿经FCX(30)磁选后,得到MFe20.07%、8.28%的合格铁精矿产品,FCX(30)尾矿经TCY(45)磁选,得到MFe 1.36%、7.99%的合格钛精矿产品,最终尾矿MFe 0.13%、1.33%。
应用现场


